北大特區-馬小姐 / 留住好日子 新古屋

留住好日子 —— 北大特區室內設計 × 新古屋住宅美學

三峽北大特區的室內設計專案《留住好日子》中,苡希創意設計以新古屋翻新思維出發,透過光線鋪陳、材質搭配與生活機能整合,打造出兼具溫度感、舒適感與實用性的住宅空間,讓日常生活在細膩且放鬆的氛圍中,留下更耐人回味的居家風景。
案件地點
北大特區
坪數
請填入坪數
類型
新古屋

三峽北大特區室內設計作品 《留住好日子》馬小姐宅 — 新古屋機能重整 Residential Design | 現代北歐療癒居所

 

座落於文教氣息濃厚的北大特區,苡希創意設計團隊為馬小姐翻新這座新古屋。我們以「留住美好時刻」為核心,將自然光感與溫潤木質交織,為一家人打造出能夠盛裝笑聲與回憶的暖心空間。

 

留住好日子:寫意、舒心、有溫度的日常

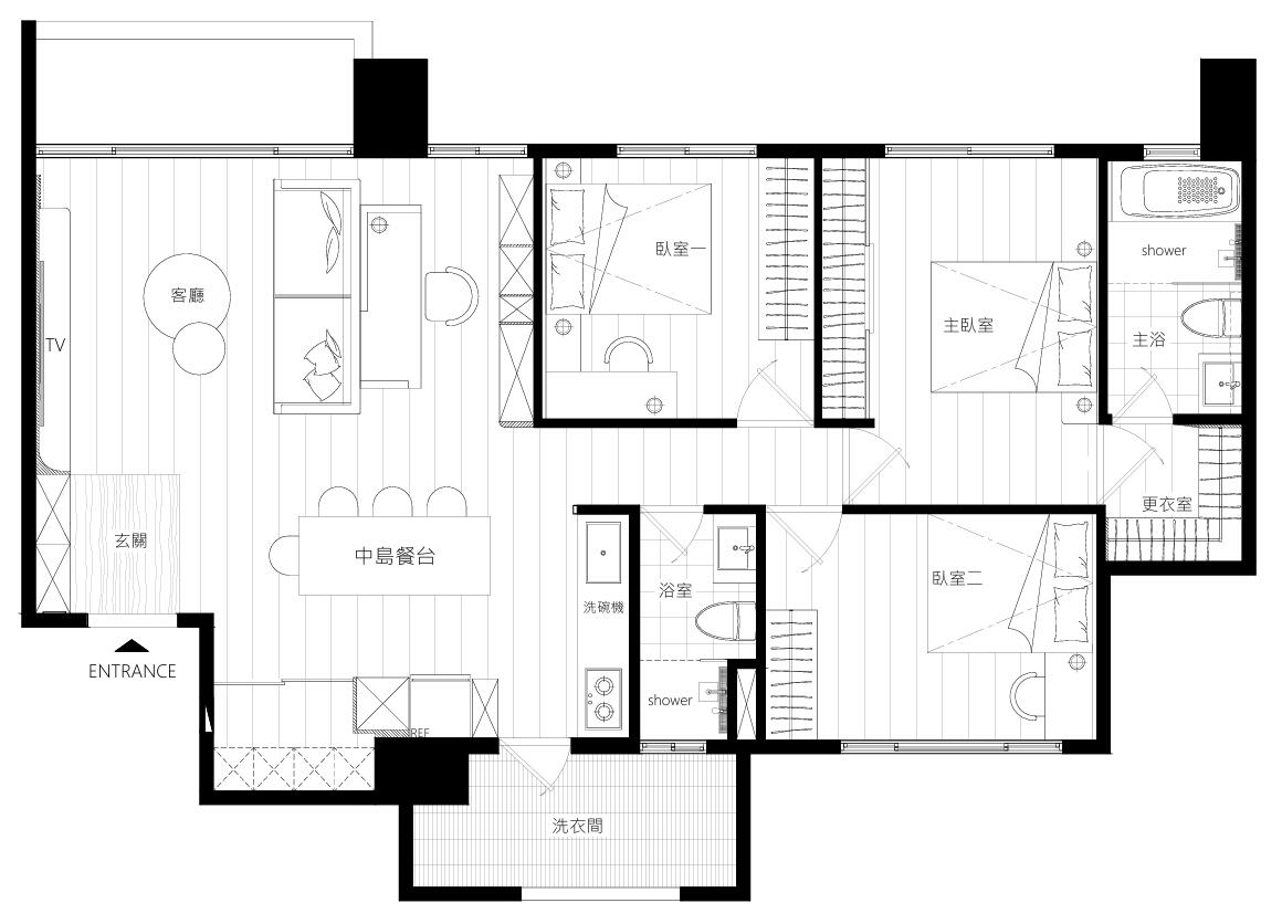
本案捨棄了過多繁瑣的裝飾,轉而追求空間的「呼吸感」。透過開放式餐廚與客廳的連結,讓家人間的互動不再受限。材質上選用大量的栓木皮與溫潤塗料,當陽光穿透窗簾灑落,室內便充滿了足以留住時光的恬淡氣息。

「讓空間成為容器,盛裝生活的每一刻溫暖。」

三峽新古屋翻新:機能美學的深度實踐

面對新古屋原有的格局,我們重新優化了收納系統與動線效率。針對北大特區家庭的生活需求,特別規劃了大量的隱藏式儲物區,維持視覺的整潔度,讓「生活感」與「設計感」能在此完美並存,實現高品質的新北住宅裝修體驗。