翠華居 / 老屋翻新

翠華居 —— 老屋翻新 × 溫潤質感住宅美學

老屋翻新專案中,苡希創意設計以空間重整與生活機能優化為核心,透過格局梳理、材質鋪陳與光感層次的細膩整合,打造出兼具溫度感、舒適感與現代美學的住宅作品,讓老屋在翻新之後展現更貼近當代生活需求的理想樣貌。
案件地點
請填入地點
坪數
請填入坪數
類型
老屋翻新

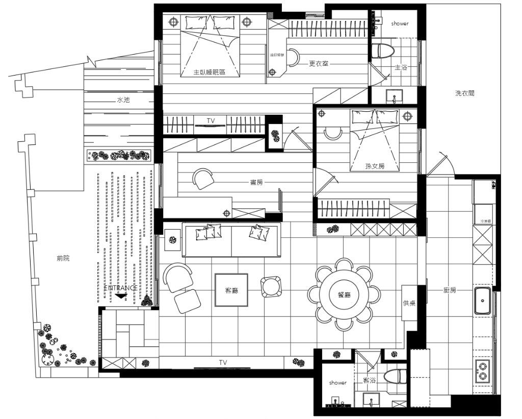
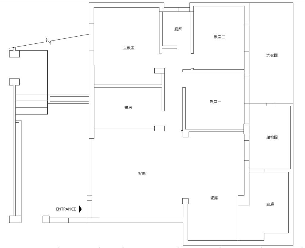
老屋翻新與空間重塑案例 《翠華居》時光蛻變 — 賦予老屋新生的簡約美學 Renovation | 舊屋改造與基礎工程整合規劃

 

老屋的價值在於承載記憶,而翻新的意義在於延續生活。在《翠華居》一案中,苡希創意設計團隊面對老舊格局與採光困境,透過精準的結構補強與空間美學導入,將歲月痕跡轉化為居家深度,為屋主構築出一處通透、暖心且機能完備的新生居所。

重塑維度:在舊結構中尋找光的出口

設計的核心在於「破舊立新」。我們重新梳理了原本破碎的動線,拆除多餘隔間以換取極大化的自然採光。運用清新的木質調與純白基底,消弭了老屋原有的陰暗感。這不僅是視覺上的美化,更是對居住品質的徹底優化,讓居住者在每個轉角都能感受到日光與空氣的自由流動。

「翻新,是為了給家人一個更好的明天。」

專業老屋改造:從基礎工程到機能美學

《翠華居》的翻新過程包含全室水電重整與結構安全補強,這是高品質裝修的基礎。在機能規劃上,我們量身打造了高坪效的收納系統,解決老屋常見的空間浪費問題。透過異材質的拼接細節,讓簡約風範中帶有精緻的人文層次,成就一場完美的時光蛻變。