新莊區 葉公館

新莊葉公館 —— 新莊室內設計 × 新古屋住宅美學

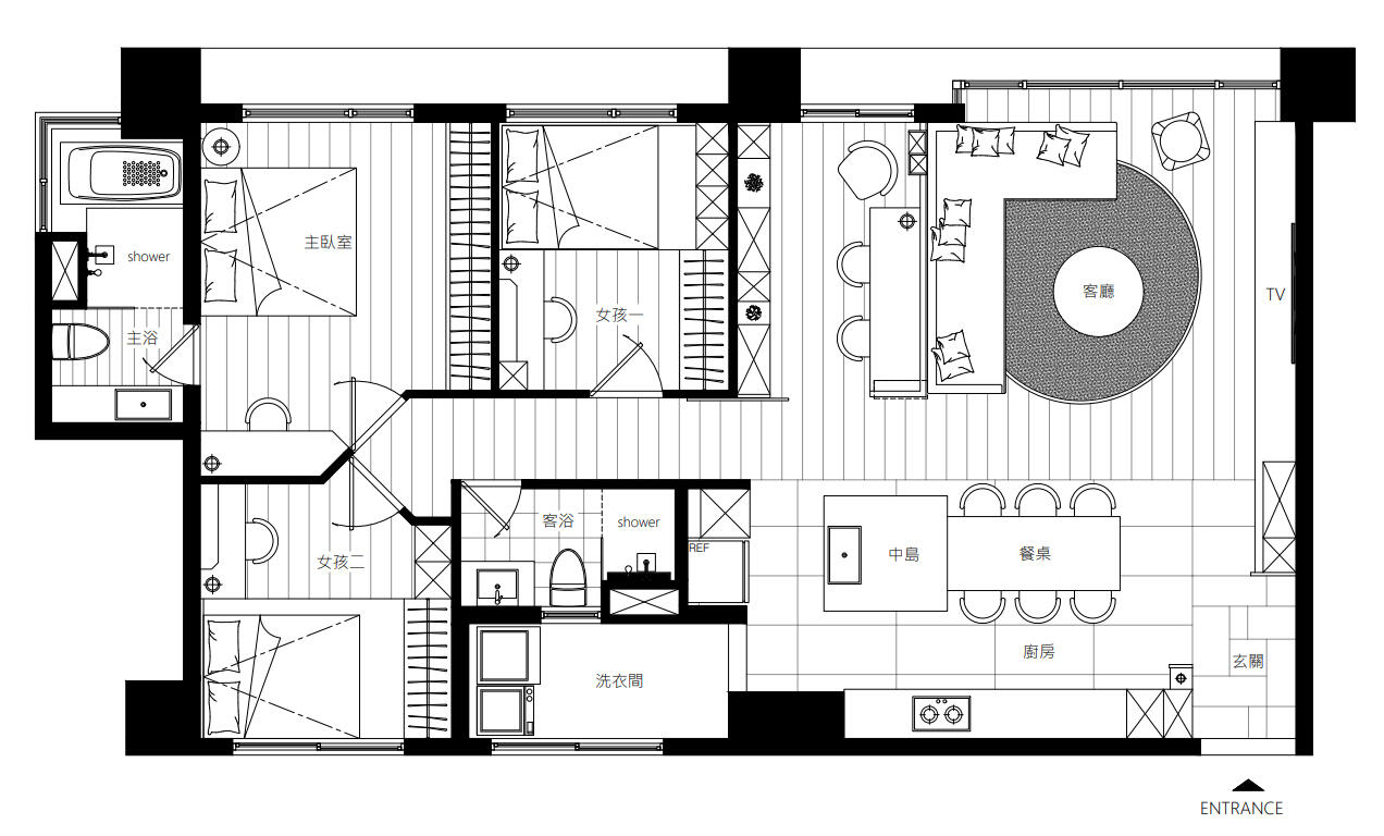
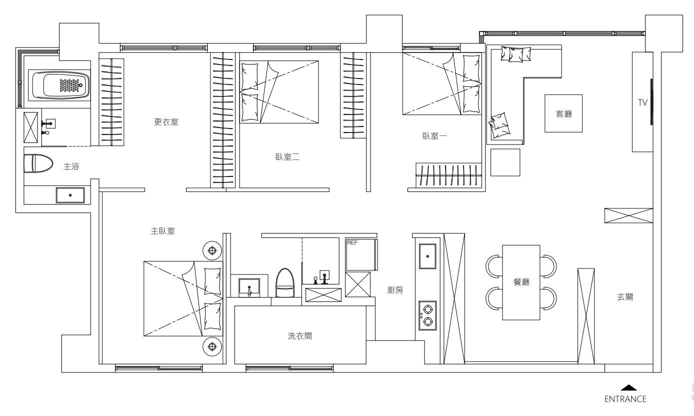
在本次位於新莊的室內設計專案《新莊葉公館》中,苡希創意設計以新古屋規劃為基礎,透過空間動線、採光表現與生活機能的細膩整合,打造出兼具現代感、舒適感與生活溫度的住宅作品,讓居家空間在保有實用性的同時,也展現更貼近屋主需求的理想生活樣貌。
案件地點
新莊區
坪數
請填入坪數
類型
新古屋

新莊精品住宅設計案例推薦 《葉公館》奢華體現 — 飯店式美學的深邃敘事 Boutique Residence | 現代深色系奢華空間規劃

 

座落於新莊精華地段,《葉公館》演繹了都會生活的尊榮尺度。苡希創意設計團隊以「深色飯店風」為核心,運用石材紋理與金屬件的冷冽感,搭配溫潤皮革與燈影佈局,為葉先生打造出一處極具張力且細膩動人的頂級寓所。

深邃美學:以質地與光影交織尊爵質感

設計的靈魂在於「光影對比」。在葉公館中,我們大膽選用深灰色系作為基調,透過黑理石的主牆氣度與鍍鈦線條的點綴,營造出如同精品飯店般的沉穩氣場。隱藏式燈帶的層次推移,不僅消弭了深色空間的壓迫感,更在細節處勾勒出不凡的工藝價值。

「沉穩而不沉重,奢華而不張揚 — 生活的最高境界。」

新莊副都心裝修專業:大氣格局與異材質工藝

葉公館的規劃重點在於「異材質的無縫接軌」。我們在石材、木質與玻璃之間尋求最完美的比例平衡。針對新莊區高質感住宅的特性,我們優化了公領域的視覺寬度,透過天花板的層次拉升與地坪材質的轉換,界定出尊榮且流暢的家庭活動動線。