暖.儷山 / 格局動線重塑住宅美學

暖.儷山 —— 老屋翻新 × 格局動線重塑住宅美學

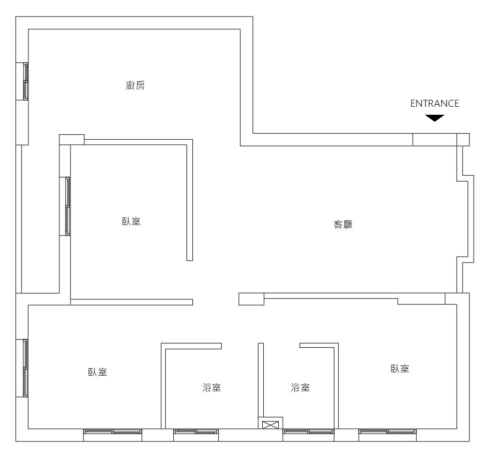
在本次《暖.儷山》老屋翻新專案中,苡希創意設計以老屋再生與格局重整為核心,透過動線優化、空間尺度調整與機能重塑,讓原有住宅展現更開闊、流暢且貼近生活需求的居住樣貌。即使是僅有 3 坪大的廚房,也能透過細膩規劃打造出兼具美感與實用性的夢幻中島空間,讓日常生活在溫潤舒適的氛圍中展現全新面貌。
案件地點
請填入地點
坪數
請填入坪數
類型
老屋翻新
 

現代美式溫馨住宅設計 《暖.儷山》— 沐浴在日光下的優雅生活 Modern American Style | 暖色系人文空間規劃

 

「暖」不只是溫度,更是一種歸屬感。在《儷山》一案中,苡希創意設計團隊以純淨的白色與暖灰色為畫布,引入大量自然採光,透過輕美式的線板勾勒與溫潤木質,為屋主構築出一處能盛裝日光與笑聲的療癒居所。

暖心敘事:讓採光成為空間最美的裝飾

本案設計核心在於「光的流動性」。我們運用經典的白色木百葉窗,讓戶外光線經過折射後,呈現出柔和的層次感。搭配室內溫潤的超耐磨木地板與柔軟的布藝家具,消弭了都會生活的緊繃感。這不僅是居家空間,更是一處能讓身心全然放鬆、感受時間緩慢流動的人文域場。

「家,是陽光最愛駐足的地方。」

風格美學:輕美式線板與機能收納的融合

在《儷山》的規劃中,我們將複雜的收納機能隱藏於優雅的立面設計中。透過細膩的踢腳線與門片線板處理,展現出不落俗套的現代美式質感。針對新成屋的格局優化,我們強調視線的通透與開放式餐廚的連結,提升家人間的互動頻率,落實「生活即藝術」的設計初衷。